Attraktives Ferienhaus mit vier Wohneinheiten in Buschvitz und Wasserblick

18528 Buschvitz, Mehrfamilienhaus zum Kauf

Kontaktdaten

Objektdaten

  • Objekt ID
    1640783321
  • Objekttypen
    Mehrfamilienhaus, Renditeobjekt
  • Adresse
    Am Bodden 25
    18528 Buschvitz
  • Etagen im Haus
    1
  • Wohnfläche ca.
    321 m²
  • Grund­stück ca.
    1.099 m²
  • Heizungsart
    Zentralheizung
  • Wesentlicher Energieträger
    Gas
  • Baujahr
    2002
  • Zustand
    gepflegt
  • Ausstattung
    Standard
  • Stellplätze gesamt
    4
  • Käufer­provision
    7,14 %
    Der Maklervertrag mit uns und/ oder unserem Beauftragten kommt durch schriftliche Vereinbarung oder durch die Inanspruchnahme unserer Maklertätigkeit auf Basis des Objekt-Exposés und seiner Bedingungen zustande. Die Käufercourtage in Höhe von 7,14 % auf den Kaufpreis einschließlich gesetzlicher Mehrwertsteuer ist bei notariellem Vertragsabschluss verdient und fällig. Grunderwerbsteuer, Notar- und Gerichtskosten trägt der Käufer.
  • Kaufpreis
    649.000 EUR

Energieausweis

  • Energieausweis
    wird bei Besichtigung vorgelegt

Objekt­beschreibung

Beschreibung

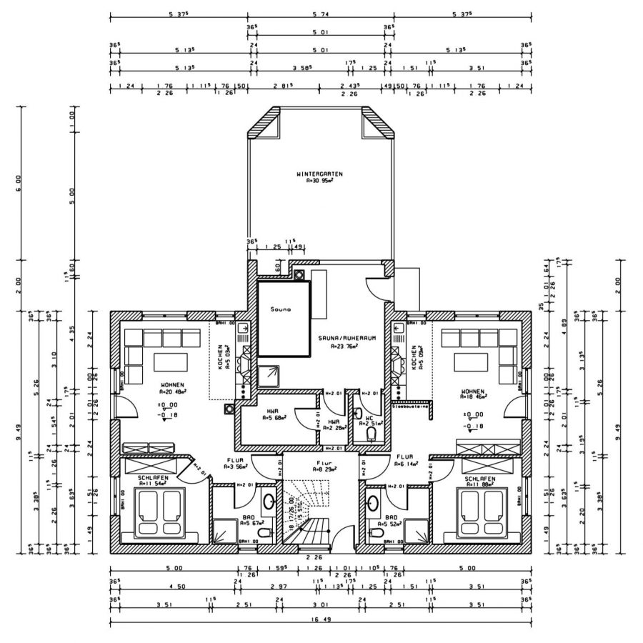
Zum Verkauf steht ein Ferienhaus mit vier Appartements im wunderschönen Ortsteil von Buschvitz.
Das Ferienhaus wurde 2002 in Massivbauweise errichtet und verfügt insgesamt über 312 m² Wohnfläche auf einem Grundstück von 1.099 m².
Im Erdgeschoss befinden sich zwei geräumige Appartements mit einer Wohnfläche von 57 m² und 58m², sowie ein großer Gemeinschaftsraum. Dieser bietet einen komfortablen Essbereich mit einer kleinen Küche. Hervorragend können Ihre Gäste hier Ihre Familienfeier zusammen verbringen. Der Zugang zur Terrasse und dem angrenzenden Garten ist von zwei Türen über den Wintergarten möglich. Weiterhin gibt es im Gemeinschaftsbereich eine kleine Sauna und eine dazugehörige Dusche mit WC- Anlage.
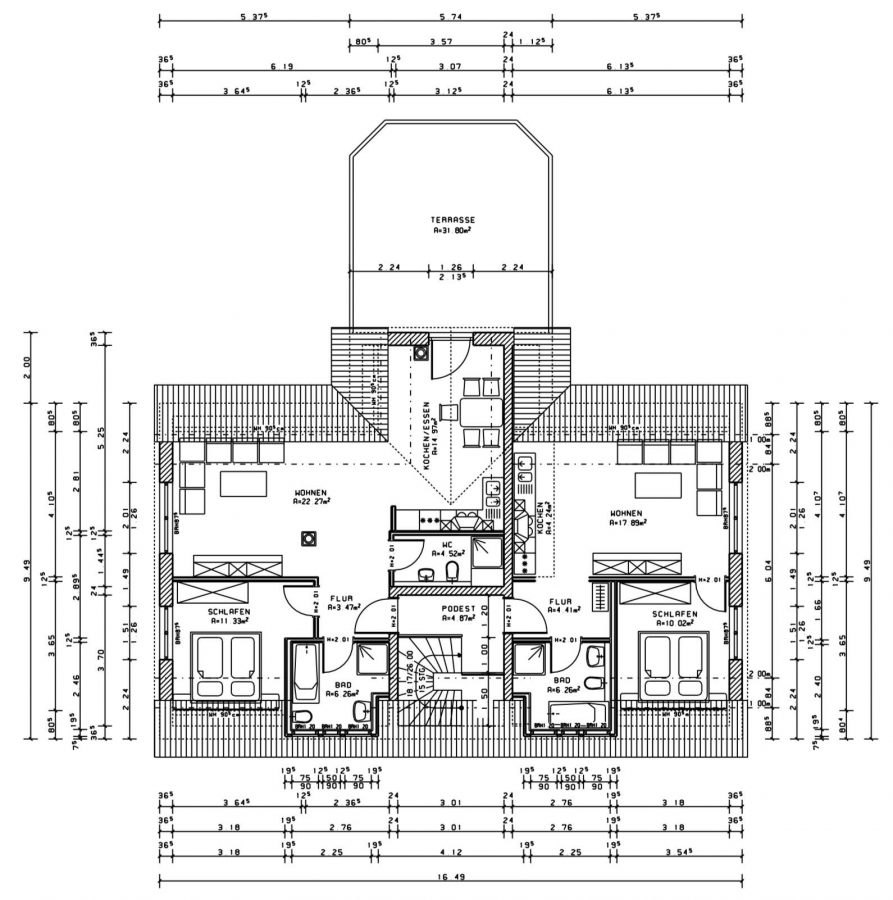
Im Obergeschoss befinden sich zwei großzügige Appartement mit einer Wohnfläche von 50 m² und über 86 m². Die Maisonette -Apartments bieten eine Nutzung bis in den Spitzboden des Objektes an.
Zu den Appartements gehören jeweils ein PKW- Außenstellplätze und ein großzügiger Garten welcher gemeinsamen genutzt werden kann.
Die wunderschöne Aussicht auf den kleinen Jasmunder Bodden lädt jeden Gast zur Erholung ein.

Wir freuen uns auf Ihre Anfrage.

Ausstattung

•4 Wohneinheiten
•Sauna
•Gäste-WC
•Großer Gemeinschaftsraum
(Wintergarten)
•Gas-Zentralheizung
•4 PKW- Außenstellplätze
•Boddenblick
•2 – 3 Zimmer
•EBK
•Bad mit Badewanne und Fenster
•Bad mit Dusche und Fenster
•Fliesenboden
•Terrasse
•Kunststofffenster mit
Isolierverglasung
•Fußbodenheizung
•zwei Kaminöfen

Sonstige Informationen

Bitte rufen Sie uns für einen Besichtigungstermin an und füllen
Sie vorher bitte vollständig unser
Kontaktformular aus. Vielen Dank.
Alle Angaben sind ohne Gewähr und basieren auf Informationen,
die uns von unserem Auftraggeber zur Verfügung gestellt wurden. Wir übernehmen keine Gewähr für die Vollständigkeit, Richtigkeit und Aktualität dieser Angaben. Irrtum vorbehalten.
Wir suchen ständig für vorgemerkte Kunden EFH, ZFH, MFH, ETW
und Baugrundstücke in Halle (Saale), Leipzig, Saalekreis,
Landkreis Nordsachsen, Insel Hiddensee, Insel Rügen, auf
Usedom. Schreiben Sie uns eine Nachricht oder rufen Sie uns an,
wir beraten Sie gern!!
Sollten Sie aus Ihrem Umfeld jemanden kennen, der seine
Immobilie verkaufen will, ist uns Ihre Empfehlung bei
erfolgreichen Kaufabschluss min. 500,00 € wert.

Lage

Die Immobilie befindet sich in Buschvitz. In der Umgebung liegen die Orte Bergen auf Rügen und Putbus. Weiter entfernt gibt es mehrere Einkaufsmöglichkeiten, Schulen und Kindergärten. Einige Museen, ein Kino, eine gute medizinische Versorgung und verschiedene Erholungs- und Sportangebote (u. a. eine Grün- und Parkanlage) erreichen Sie schließlich ebenfalls im größeren Umkreis.
In Buschvitz selbst befindet sich die Freiwillige Feuerwehr, ehemaligen Büdnereien und Fischerhäusern, sowie ein Hügelgräberfeld. Der See Ossen und der Kleine Jasmunder Bodden lädt zur Wanderung und Erholung ein.

Direktanfrage

* Pflichtangaben
 SSL-verschlüsselt
Darstellung der Immobilien mit WP-ImmoMakler und Daten aus
WordPress Cookie Hinweis von Real Cookie Banner