Das zum Verkauf stehende Reihenendhaus befindet sich in einer schönen ruhigen Lage in Wiedemar OT Wiesenena. Das Haus wurde im Jahre 1996 gebaut und steht auf einem ca. 273 m² großen Grundstück. Die Gesamtwohnfläche beträgt ca. 120 m². Vor dem Haus ist ein PKW-Stellplatz und dahinter eine Terrasse mit Garten vorhanden. Insgesamt verfügt die Immobilie über ein Erdgeschoss, ein Obergeschoss, ein ausgebautes Dachgeschoss sowie über ein ausgebautes Kellergeschoss.
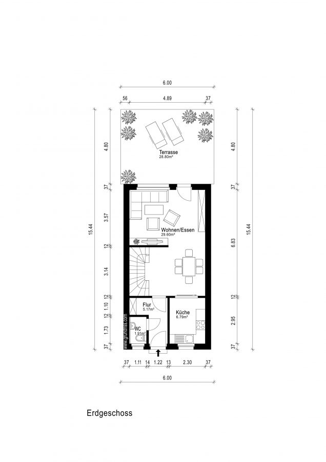
Im Erdgeschoss gelangt man über den Flur in das Gäste- WC, die separate Küche sowie in das große Wohnzimmer. Das Wohnzimmer verfügt über einen Zugang zur Terrasse sowie zum anschließend den Garten.
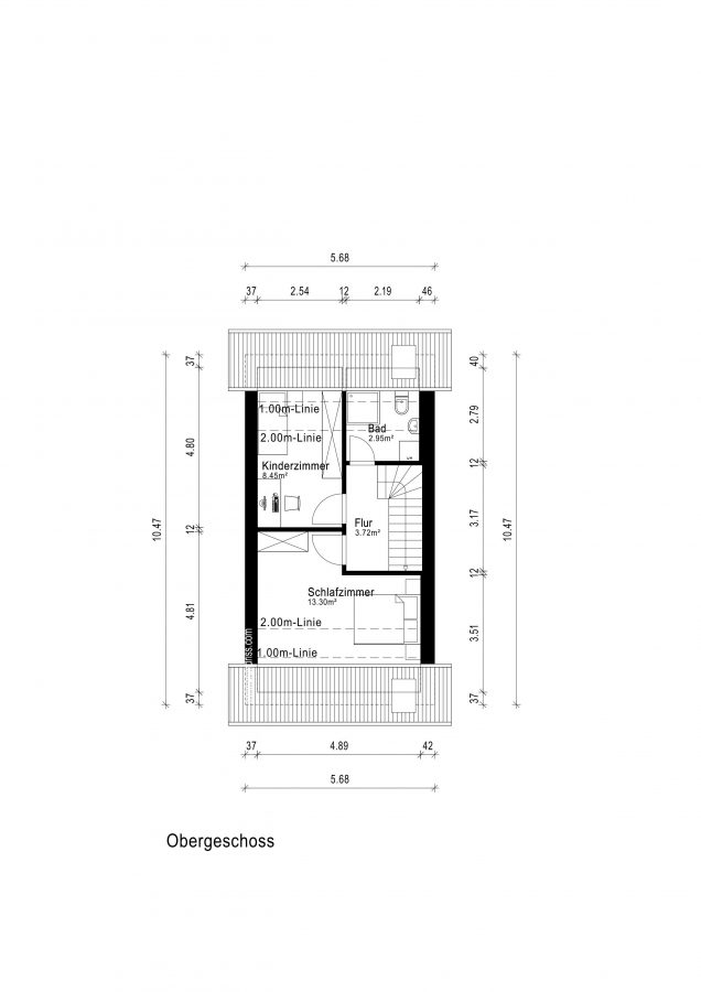
Im Obergeschoss des Hauses sind ein geräumiges Schlafzimmer, ein Kinderzimmer sowie ein Badezimmer mit Tageslicht mit Dusche und einer Badewanne untergebracht.
Das Dachgeschoss ist ausgebaut und bietet Ihnen ein weiterer Raum mit viel Potenzial.
Im Kellergeschoss befindet sich ein großzügiger Wäscheraum mit intrigierter Dusche, ein Vorratsraum sowie ein zusätzlicher Wohnraum welcher sich zum Beispiel als Büro eignet.
Alle Fenster im Erdgeschoss und Obergeschoss sowie die Terrassentür sind mit Rollläden ausgestattet.
Zusätzlich zum PKW-Stellplatz vor dem Haus gibt es eine Garage gleich neben dem Haus.
Wir freuen uns auf Ihre Anfragen!
•5 Zimmer
•Fliesenböden, Laminat
•Badezimmer mit Badewanne und
Dusche sowie Tagelicht
•Gäste-WC
•Voll unterkellert
•Keller mit zusätzlicher Dusche
•Gaszentralheizung
•Garten
•Garage
•PKW-Stellplatz vor dem Haus
Bitte rufen Sie uns für einen Besichtigungstermin an und füllen Sie vorher bitte vollständig unser Kontaktformular aus. Vielen Dank.
Alle Angaben sind ohne Gewähr und basieren auf Informationen, die uns von unserem Auftraggeber zur Verfügung gestellt wurden. Wir übernehmen keine Gewähr für die Vollständigkeit, Richtigkeit und Aktualität dieser Angaben. Irrtum vorbehalten.
Wir suchen ständig für vorgemerkte Kunden EFH, ZFH, MFH, ETW und Baugrundstücke in Halle (Saale), Leipzig, Saalekreis, Landkreis Nordsachsen. Schreiben Sie uns eine Nachricht oder rufen Sie uns an, wir beraten Sie gern!!
Sollten Sie aus Ihrem Umfeld jemanden kennen, der seine Immobilie verkaufen will, ist uns Ihre Empfehlung bei erfolgreichen Kaufabschluss 500,00 € wert.
Das Reihenendhaus befindet sich in der Gemeinde Wiedemar im Ortsteil Wiesenena.
Wiesenena ist in den letzten Jahren stetig gewachsen. Es entstanden verschiedene Ein- und Mehrfamilienhäuser.
Eine Grundschule, ein Sportverein, eine Imkerei sowie eine Tischlerei ein befinden sich direkt in Wiesenena.
Schule, Tierarztpraxis, Tankstelle, Apotheke, Restaurant/Café und verschiedene andere Einkaufmöglichkeiten ist in dem anliegenden Nachbarorten vorhanden und gut mit dem Auto oder öffentlichen Verkehrsmittel zu erreichen.
Die Stadt Halle (Saale) liegt ca. 16 km westlich, die Stadt Delitzsch ca. 17 km nordöstlich vom Ortsteil Wiesenena entfernt. Die Stadt Leipzig erreichen Sie in ca. 30 km. Die A14 und die A9 sind beide schnell erreichbar.
Die dargestellte Position der Immobilie ist nur eine ungefähre Angabe.